Share Listing   Show Commission
  Edit Listing
Last updated on December 1st, 2025

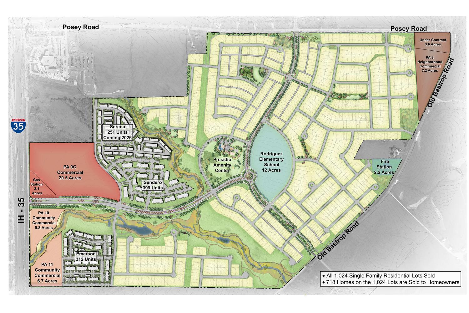
6.7 Acre Community Commercial Site on IH 35

Van Horn Trace, San Marcos, Texas 78666


Land Size6.7 Acres
ZoningCommunity Commercial
Waterin place
SewerIn place
ElectricIn place

Prime Location on I-35. Highly visable. Great location for restaurants and hotels, office building, daycare, shopping center. Large master planned community. Within walking distance of large Multi family site.

Shovel ready site.

One exit south of the San Marcos outlet mall. Prime location with great visibility from I-35 and on-ramp immediately adjacent to site.


The information contained herein is from sources deemed reliable, but is subject to errors, omissions, and withdrawal without notice.

Top of Page