Share Listing   Show Commission
  Edit Listing
Last updated on February 9th, 2026

_Sanford Office Warehouse or Multiplex Dev.

$6,185,500

200 N Elm Ave #200, Sanford, Florida 32771


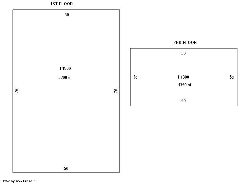
Building Size39,442 Square Feet
Land Size1.42 Acres
ZoningSC-3
ParkingYes
WaterCity of Sanford
SewerCity of Sanford
ElectricFlorida Power
Year Built1938
ConstructionConcrete Block & Brick
RoofTPO - Thermoplastic PolyOlefin

Located in close proximity to the Lake Monroe Marina and Downtown Sanford, FL this 1.42 acre property outlines a complete city block.

Operating today as a 40,000 sqft Office/Warehouse space by the owners, a buyer could use or lease the property “As Is” or develop it into a much needed Marina Market.

The Marina Market concept would consist of a Boston Quincy Market styled shopping area on the 1st floor with a Co-Working leased 2nd floor and 4 level Smart Solar Powered parking garage stacked on top.

The usable footprint of each floor of the Marina Market Multiplex should come in at or near 45,000 sq ft per floor. The property could be developed by a single owner or "Condoed Out" by functional element. Complete information on the 2 parcels can be found at:

https://files.scpafl.org/footprintimage/2519305ag010700101_1.jpg

https://www.scpafl.org/search/parcels/details/?APPRID=5354539


The information contained herein is from sources deemed reliable, but is subject to errors, omissions, and withdrawal without notice.

Top of Page