| Lease Sizes | 1648 Square Feet |
| Building Size | 50,000 Square Feet |
| Zoning | P-D |
| Parking | 10 |

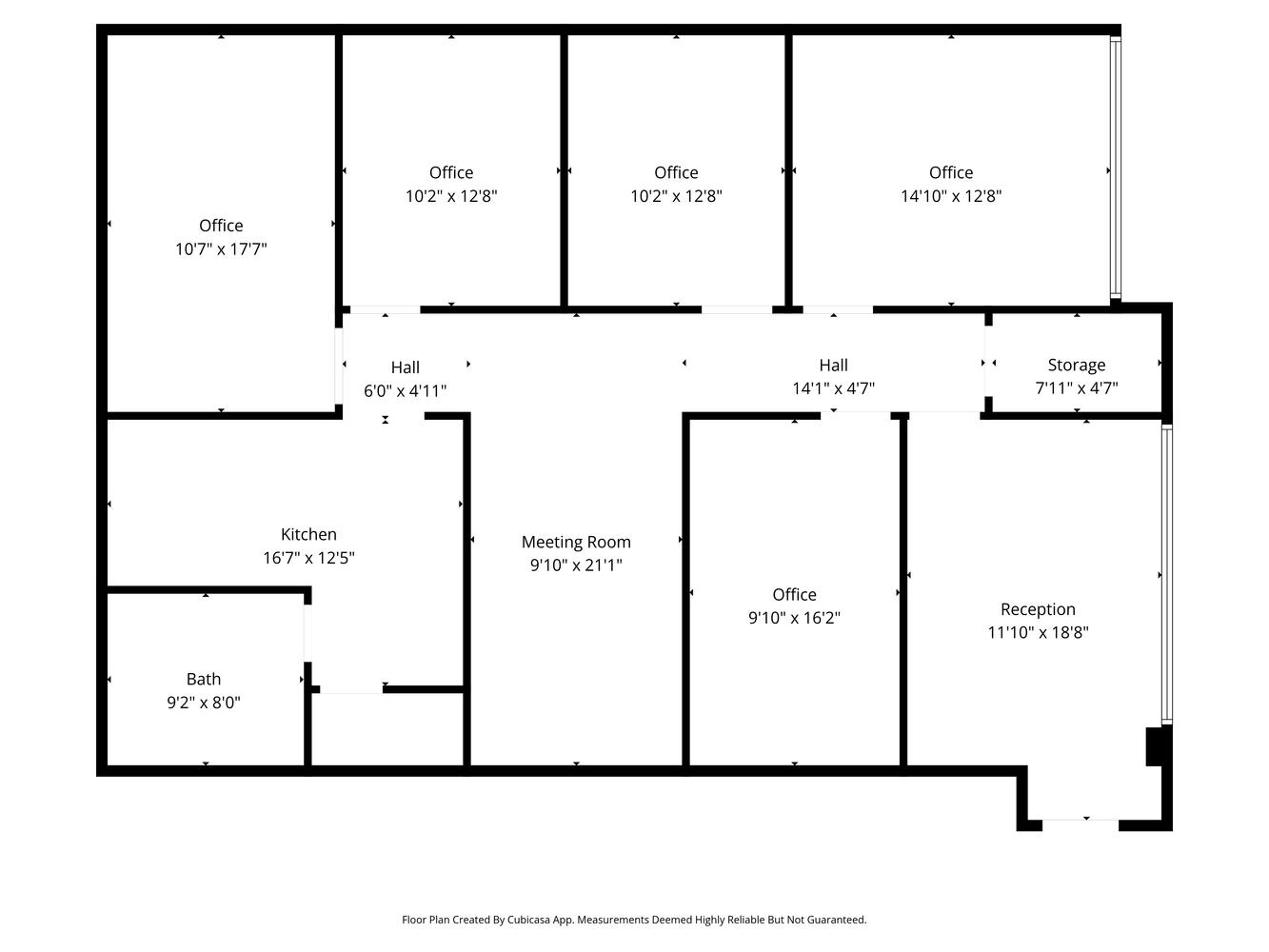
Prime office space available for lease near Waterford Lakes! This well-designed 1,648 sq. ft. suite is perfect for a professional office. The layout is built out and move-in ready, featuring four private offices, a conference room, a welcoming reception area, a kitchen/breakroom, and a private restroom. Water is included in the lease, and tenants will enjoy ample parking and a convenient location close to shopping, dining, and major highways. Available for occupancy by the end of March 2026. Ideal for any growing business seeking a professional environment in one of Orlando’s most desirable areas.
The information contained herein is from sources deemed reliable, but is subject to errors, omissions, and withdrawal without notice.
Powered by TotalCommercial.com